Konferencje.pl / Sale konferencyjne Mazowieckie / Sale konferencyjne Warszawa / Arche Hotel Poloneza Warszawa

Arche Hotel Poloneza – miejsce, w którym sami chcielibyśmy zamieszkać
Arche Hotel Poloneza to więcej niż hotel – to przestrzeń stworzona z myślą o tych, którzy cenią sobie swobodę, inspirujące spotkania i wyjątkową atmosferę łączącą pracę z odpoczynkiem. Nasza filozofia opiera się na idei ekonomii współdzielenia, dlatego ponad połowę naszej bazy hotelowej przeznaczyliśmy dla gości planujących długoterminowy pobyt – na miesiąc lub dłużej.
Jesteś cyfrowym nomadem, który pracuje z dowolnego miejsca na świecie? A może żyjesz w dynamicznym rytmie miasta i szukasz elastycznej przestrzeni do pracy i relaksu? Arche Hotel Poloneza to miejsce stworzone właśnie dla Ciebie. Świat się zmienia, ale my nie gonimy za trendami – my je wyznaczamy. Tak jak Ty.
Warszawa, ul. Poloneza 85a-87.
Kompleks trzech budynków otaczających duży, zielony dziedziniec – idealne miejsce do odpoczynku i spotkań na świeżym powietrzu.
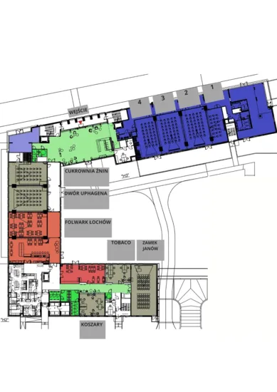
13 sal konferencyjnych na parterze budynku głównego (powierzchnia od 44 m² do 123 m²).
Możliwość łączenia sal – dwie największe przestrzenie to 267 m² i 296 m².
Przestronne foyer (91 m²) dla organizatorów spotkań i eventów.
384 komfortowe pokoje jedno- i dwuosobowe oraz apartamenty dwupokojowe.
Większość pokoi wyposażona w aneksy kuchenne – idealne na długoterminowe pobyty.
Sala śniadaniowa oraz Restauracja Optymistyczna, położona przy salach konferencyjnych.
RESTOBAR3/4 – restauracja à la carte, serwująca dania inspirowane światowymi trendami kulinarnymi.
Garaż podziemny.
Patio idealne na eventy plenerowe, z możliwością ustawienia namiotu.
Arche Hotel Poloneza to miejsce, które dostosowuje się do Twoich potrzeb – zarówno na chwilę, jak i na dłużej.
| Nazwa | Liczba pokoi | |||||||
|---|---|---|---|---|---|---|---|---|
| | | | | | | | | | | | | | | | | | | | |||||||
|
Łóżka jednoosobowe: | | | | |
Łóżka dwuosobowe: | | | | |
|
||||||||
| | | | | | | | | | | | | | | | | | | | |||||||
|
Łóżka jednoosobowe: | | | | |
Łóżka dwuosobowe: | | | | |
|
||||||||
| | | | | | | | | | | | | | | | | | | | |||||||
|
Łóżka jednoosobowe: | | | | |
Łóżka dwuosobowe: | | | | |
|
||||||||
| | | | | | | | | | | | | | | | | | | | |||||||
|
Łóżka jednoosobowe: | | | | |
Łóżka dwuosobowe: | | | | |
|
||||||||
| | | | | | | | | | | | | | | | | | | | |||||||
|
Łóżka jednoosobowe: | | | | |
Łóżka dwuosobowe: | | | | |
|
||||||||
| | | | | | | | | | | | | | | | | | | | |||||||
|
Łóżka jednoosobowe: | | | | |
Łóżka dwuosobowe: | | | | |
|
||||||||
| | | | | | | | | | | | | | | | | | | | |||||||
|
Łóżka jednoosobowe: | | | | |
Łóżka dwuosobowe: | | | | |
|
||||||||
Poloneza 85a-87, 02-826 Warszawa, mazowieckie