Konferencje.pl / Sale konferencyjne Śląskie / Sale konferencyjne Katowice / Scena 54 Katowice

Scena54 to unikalna przestrzeń na mapie Katowic, która na co dzień łączy funkcje restauracji i cocktail baru z eleganckim miejscem eventowym idealnym na bankiety, konferencje i spotkania biznesowe.
To miejsce, które harmonijnie łączy kulinarną jakość z wysokim standardem obsługi oraz dopracowaną estetyką wnętrz. Scena54 doskonale sprawdza się jako przestrzeń do nieformalnych spotkań biznesowych, konferencji, relaksujących wieczorów z przyjaciółmi czy niezapomnianych imprez do białego rana. Dzięki swojej wielowymiarowości i dbałości o detale, spełnia marzenia najbardziej wyrafinowanych Gości o miejscu, w którym każda wizyta staje się wyjątkowym doświadczeniem.
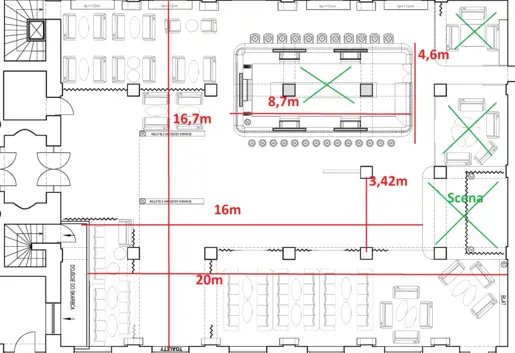
Główna sala może komfortowo pomieścić do 110 uczestników konferencji, oferując elastyczne ustawienie przestrzeni w zależności od potrzeb organizatorów. Do dyspozycji gości pozostaje kompletne zaplecze techniczne: nagłośnienie, internet Wi-Fi, projektor z wbudowanym ekranem, flipchart, klimatyzacja oraz system wygłuszenia sali, który zapewnia komfort akustyczny nawet podczas wielogodzinnych wystąpień.
Szukasz przestrzeni na firmowy bankiet, elegancką kolację integracyjną lub mniej formalny wieczór w stylu standing party? Scena54 to niebanalna lokalizacja w Katowicach, która doskonale łączy klimat klubowej elegancji z elastycznymi możliwościami aranżacji.
Stylowe wnętrza inspirowane klasyką i miejskim szykiem tworzą idealne tło dla wydarzeń, które mają zaskoczyć formą i jakością. Niezależnie od tego, czy planujesz wieczór z muzyką na żywo, prezentację nowego produktu w kameralnym gronie, czy firmową kolację z pełną obsługą – Scena54 pozwala zrealizować każdą wizję.
Przestrzeń pomieści do 100 osób przy uroczystym stole lub nawet 550 gości w wersji stojącej. Obiekt dysponuje profesjonalnym nagłośnieniem, klimatyzacją, szybkim Wi-Fi oraz infrastrukturą, która wspiera sprawny przebieg każdego wydarzenia. To miejsce, które inspiruje – i zostaje w pamięci.
Scena54 to przestrzeń, która łączy funkcjonalność z niebanalną estetyką, podnosząc rangę każdego wydarzenia i pozostawiając pozytywne wrażenie na uczestnikach.
Lokalizacja: Scena 54 znajduje się na parterze dawnego Banku Śląskiego, przy ulicy Mickiewicza, w Katowicach.
Architektura: przestronne, klimatyczne, klubowe wnętrza z lożami i sceną.
Sale konferencyjne: sala klubowa pomieści 110 uczestników konferencji lub 110 gości kolacji zasiadanej. W obiekcie można organizować eventy w formie standing party dla 550 osób.
Gastronomia: na miejscu działają restauracja oraz coctail bar.
| Nazwa | Liczba pokoi | |||||||
|---|---|---|---|---|---|---|---|---|
| (3 osoby • 2 łóżka) | 37 | |||||||
|
Łóżka jednoosobowe: 1
Łóżka dwuosobowe: 1
|
||||||||
Mickiewicza 3, 40-092 Katowice, śląskie